Тристаен апартамент гр.Варна, 195.000€ | 381.386,85лв, 87 кв.м.

  • Апартамент
  • 2
  • 1
  •  
Код 180720255
Цена на кв.м. 2.241€ | 4.383,76лв
Област Победа (Варна)
Спални 2
Етаж 9-ти
Гараж / Паркомясто Да
Година на строеж В процес на изграждане
Нива 1
Кухни 1
Дневни 1
Бани 1
Тоалетна 1
Статус Недовършен
Тип Инвестиционен
  • Склад / Хранилище
  • Гледка
  • Дограма: PVC
  • Блиндирана врата
  • Ориентация: Южен
  • Достъп за инвалиди
  • Изглед към улица
  • Охранителна система

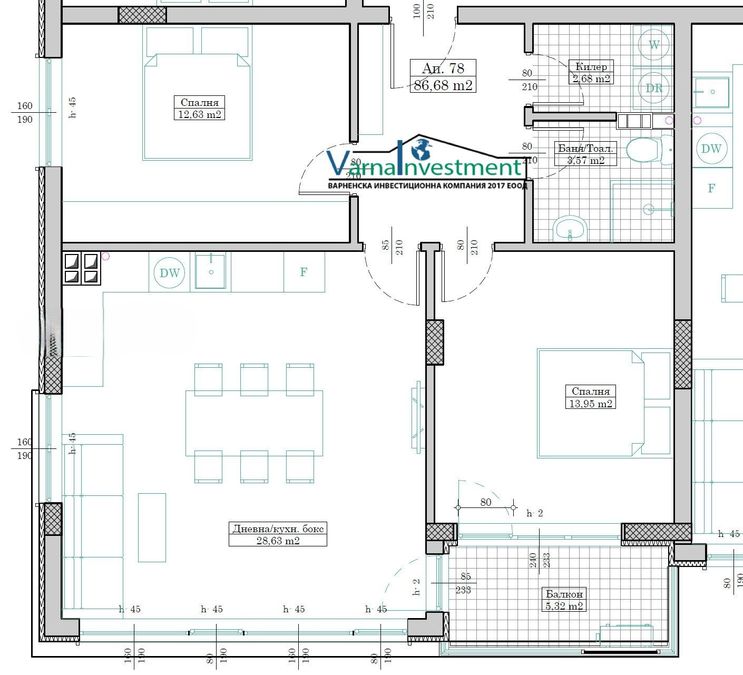
Продаваме апартамент в сграда в строеж пред Акт 15 в нова сграда .
Апартаментът е много светъл, с перфектно изложение и гледки на юг и запад с големи прозорци. Имотът е с РЗП 86.68 кв.м.

- голяма и просторна дневна с кухненски бокс (28.63 кв. м.), две спални (12.63 и 13.95 кв. м.), балкон гледащ на юг,
баня с тоалетна и отделно колер/мокро помещение.
Приложено добавям и примерни дизайни на помещенията, които новият собственик може да завърши спрямо своите предпочитания.
С нимките са визоализация.Към апартамента може да се закупи подземно парко място -23000 евро.
Издава се на БДС.


Изчесляване на вноски

Въведете информация за заема и натиснете 'Изчисли '
%
Години

Изчисли